产品分类
产品详情

上一个:Mixed dispersion emulsifier
下一个:没有了!
产品详情
working principle
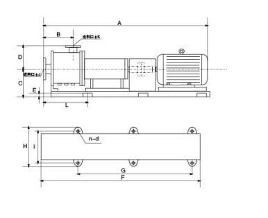
The pipeline high-shear emulsifying machine is a high-performance equipment for continuous production or cyclic processing of fine materials. In a narrow space cavity, there are three sets of dual-layer multi-stage stators and rotors. The rotor is driven by a motor at high speed to generate a strong axial suction force to draw the material into the cavity. In the shortest time, the material is dispersed, sheared and emulsified, and the particle size distribution range is also significantly narrowed. This makes it possible to produce fine long-term stable products
Advantages of pipeline emulsifier
1. Large processing capacity, suitable for industrialized online continuous production
2.Narrow particle size distribution and high uniformity
3.Save time, efficiency, and energy consumption
4.Low noise and smooth operation Quality difference
5. No dead angle, 100% of the material is sheared through dispersion
6.With short distance and low head conveying function
7. Easy to use, convenient maintenance, can realize automatic control


